Objekt-Nr. 04251203
Metzer Straße 22, 10405 Berlin-Prenzlauer Berg
Wohnen auf zwei Etagen im Dachgeschoss mit 4 Dachterrassen – ein Traum!
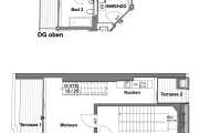
2,5-Zimmer-Dachgeschoss-/Maisonette-Wohnung, ca. 102 m², 5./6.OG mit Aufzug und vier Dachterrassen mit Blick über Berlin. Diese faszinierende Wohnung ist mit einer Gasetagenheizung/Solartechnik ausgestattet. Sie wohnen auf zwei Etagen mit Blick auf den Fernsehturm. Natürlich sind die Wände tapetenlos glatt gespachtelte und die Böden sind mit Eiche-Echtholzparkett belegt. Auf der Wohnetage befinden sich der Küchenbereich mit kleiner Frühstücksterrasse sowie ein kleines Gäste-/Arbeitszimmer und ein elegantes Gäste-Duschbad. Die Küche ist ohne Ausstattung (die vorhandene, abgebildete Einbauküche kann gegen Ablöse in Höhe von 7.000,- EUR übernommen werden). Eine elegante Treppe führt hinauf auf die Schlafebene, wo sich das luxuriöse Wannenbad mit Fenster befindet mit Austritt auf die Dachterrasse. Alle Räume sind herrlichen, sonnendurchfluteten, bodentiefen Fenstern ausgestattet, die zusätzlich elektrische Sonnenschutzjalousien bieten. Das Schlafzimmer hat zwei Dachterrassen, eine Süd und eine zum Kollwitzplatz ausgerichtet. Dazu gibt es einen Hauswirtschaftsbereich für Ihre Waschmaschine, wo sich auch die moderne Heizungsanlage befindet, Sie heizen also autark unabhängig vom Gebäude! Auch auf einen Keller müssen Sie nicht verzichten und eine Video-Türsprechanlage gibt es auch. Die Lage, nur zwei Minuten vom Wasserturm und Kollwitzplatz entfernt, ist hervorragend! Sicher werden auch Sie begeistert sein, sehen Sie selbst …
Lage: Metzer Straße. Sehr begehrte Lage im Herzen des beliebten Kiezes Prenzlauer Berg. In wenigen Minuten spazieren Sie zum Kollwitzplatz bis hin rund um den Wasserturm, bekannt mit ihren vielen kieztypischen Bars und Restaurants. Auch zum Alexanderplatz spazieren Sie in fünf Minuten und der wunderbare Augustiner Biergarten liegt Ihnen zu Füßen, wo Sie im Sommer viele Stunden verbringen werden.
Verfügbarkeit/Mietbeginn: frei ab sofort!
| Netto-Kaltmiete: | 2.595,00 EUR |
| Betr.-Nebenkosten (kalt): | 213,00 EUR |
| Heizung/WW: | Selbstabrechnung mit Gasversorger |
| Kaution: | 3 x Netto-Kaltmieten |
Mietvertrag:
unbefristet | Mindestmietzeit 2 Jahre | Indexmiete

