Objekt-Nr. 04260201
Knaackstraße 39, 10435 Berlin (Prenzlauer Berg)
Arbeiten am Kollwitzplatz, ideal für Büro, Agentur oder Praxis – Gelegenheit!
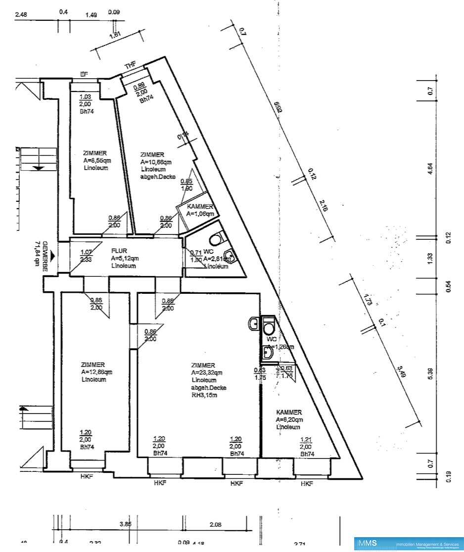
3,5-Zimmer-Gewerbe-Einheit im Vorderhaus eines sanierten Altbaus, ca. 72 m² – EG (Hochparterre). Diese gut geschnittene Gewerbe-Einheit wurde im Jahr 2019 komplett neu saniert und renoviert und liegt im Hochparterre zur Straße. Diese schöne Gewerbe-Einheit ist renoviert und mit einer modernen Gasetagenheizung, modernisierter Elektrik, modern gefliester WC-Toilette sowie ansprechenden tapetenlos glatt gespachtelten Wänden ausgestattet. Vor sechs Jahren wurden auch die Zimmertüren erneuert und die Böden sind mit pflegeleichtem, robusten Vinyl-Design-Boden belegt. Alle Fenster zur Straße sind mit Rollläden ausgestattet, die Fenster zum Hof sind vergittert, zusätzlich sind hier die Rollläden elektrisch. Zwei Arbeitsräume liegen zur Straße, der dritte Raum sowie ein halber (kleinerer) Raum liegen zur Rückseite. Die Arbeitsräume sind alle vom Flur aus begehbar, somit jeweils einzeln nutzbar. Lediglich der Hauptraum ist ein Durchgangszimmer zur Teeküche (ohne Ausstattung). Sie finden hier eine sehr gut geschnittene Gewerbe-Einheit. Direkt nebenan befindet sich seit vielen Jahren ein Optiker-Fachgeschäft und der übernächste Nachbar ist der beliebte „Gugelhof“, ein alt eingesessenes Restaurant. Wenn Sie Ihren neuen Standort am Kollwitzplatz suchen, dann sind Sie hier genau richtig, sehen Sie selbst …
Auf Wunsch bietet der Vormieter die vorhandene Einbauküche zur Übernahme gegen verhandelbare Ablöse an, wie auch ein Stangenschloss an der Eingangstüre. Wenn Sie die erforderlichen Gebrauchsspuren des Vormieters selbst entfernen, erhalten Sie Küche und Stangenschloss geschenkt. Wir finden, das ist ein fairer Deal.
Lage: Knaackstraße. Sie arbeiten im Herzen des beliebten Stadtteils Prenzlauer Berg direkt am Kollwitzplatz. Direkt um die Ecke befindet sich der beliebte Wasserturm und rund herum finden Sie viele Bars und Restaurants. Ihre Mitarbeiter und Kunden gelangen zu Ihnen u.a. mit der U2 U-Bahn Station Senefelder Platz und spazieren in wenigen Minuten zu Ihnen.
Verfügbarkeit: ab sofort!
| Netto-Kaltmiete: | 2.100,00 EUR* |
| Betriebsnebenkosten (kalt): | 120,00 EUR* |
| Heizung/WW: | Selbstabrechnung mit Gasversorger |
| Kaution: | 3 x Netto-Kaltmieten |
*Die Preise für Mieten und Nebenkosten verstehen sich netto zuzüglich der gesetzlichen Mehrwertsteuer
Mietvertrag:
5 Jahre mit Verlängerungsoption weiterer 5 Jahre | 2 % Staffelmiete als Ausgleich für Lage-/ Inflationsentwicklung
___________________________________________________________

