Objekt-Nr. 04251003
Danziger Straße 128, 10407 Berlin (Prenzlauer Berg)
„B Ö T Z O W V I E R T E L“
Herrlicher Altbau mit Charme und Charakter – Stuck, Parkett und Schallschutzfenster – Toll!
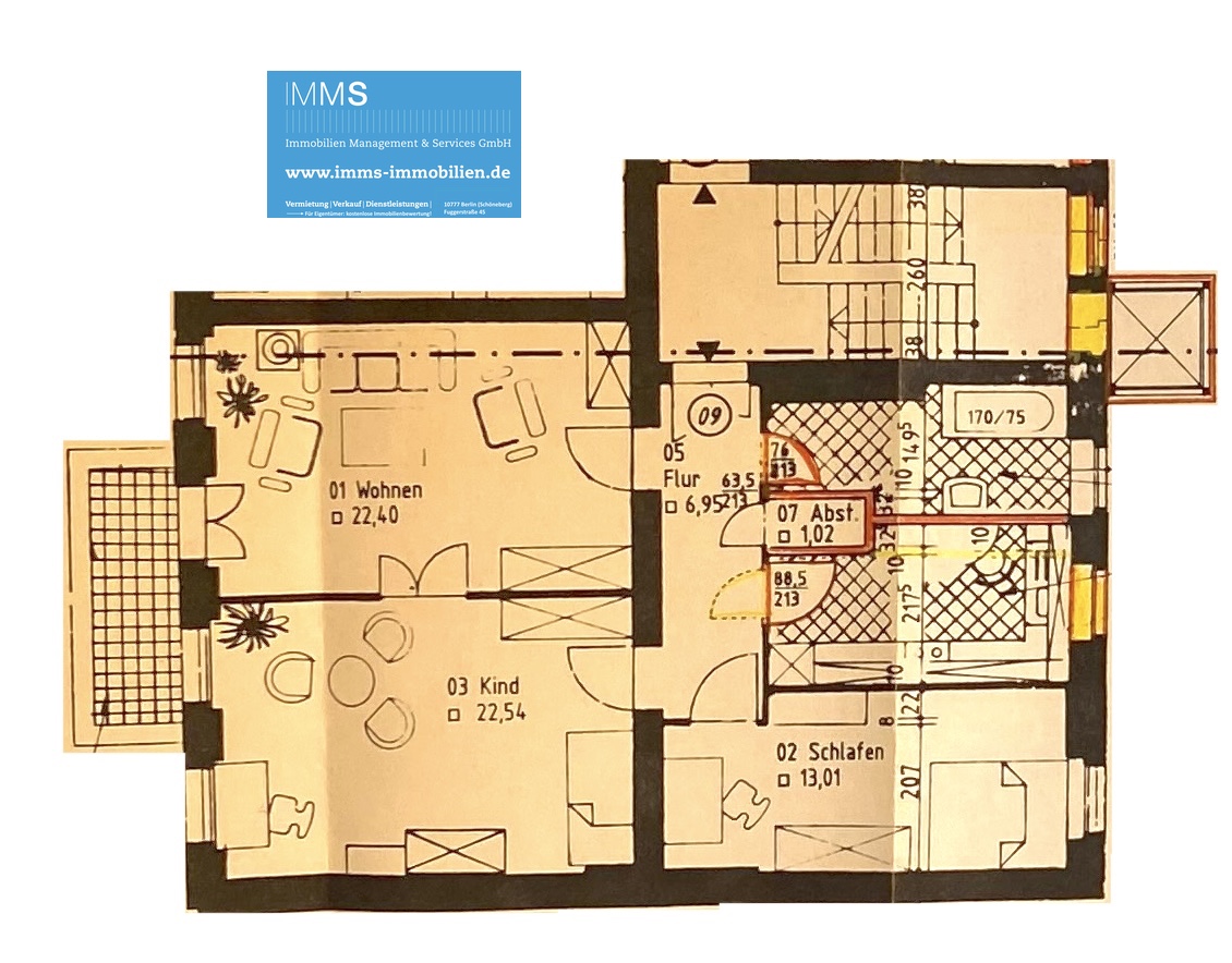
3-Zimmer-Altbau-Wohnung im Vorderhaus eines sanierten Altbaus, ca. 85 m², 1.OG mit Aufzug und Balkon mit 180° Ausblick (Baujahr um 1903, die Grundsanierung mit moderner Anlagentechnik, inkl. Elektrik und Schallschutzfenster, fand im Jahr 2001 statt). Diese schöne Altbau-Wohnung ist vollständig renoviert und ist mit modernen ISO-/Schallschutzfenstern, Zentralheizung sowie zentraler Warmwasserversorgung ausgestattet. Das Schlafzimmer liegt zur ruhigen Rückseite des Gebäudes und lässt viel Platz für Gestaltungsmöglichkeiten. Einen wunderbaren Altbau-Charme verleihen der Wohnung u.a. die hohen Stuck-Decken, die originalen Bodenbeläge Fischgrät-Parkett und Holzdielen sowie nicht zuletzt die altbautypischen, hohen Flügeltüren, einfach herrlich! Das Wannenbad mit Fenster ist elegant in schwarz/grau-braun/weiß modernisiert, bietet neben einem modernen Waschtisch einen Handtuchheizkörper und die Waschmaschine findet ebenfalls hier Platz. Die Wohnküche ist pflegeleicht gefliest, sie ist mit einer Einbauküche ausgestattet und Ihr Frühstückstisch findet auch bequem Platz. Am Flur gibt es eine Abstellkammer, sehr praktisch! Selbstverständlich müssen Sie auch auf Ihr Kellerabteil nicht verzichten und zusätzlich gibt es ausreichend Fahrradabstellmöglichkeiten im Keller und Innenhof. Diese Wohnung in dieser hervorragenden Lage sowie das liebevoll gepflegte Gesamt-Objekt werden Sie begeistern, sehen Sie selbst …
Lage: Danziger Straße / Bötzowviertel. Sie wohnen zwischen dem Volkspark Friedrichshain und dem Winsviertel. Kleine Cafés und gute Restaurants befinden sich um die Ecke gelegen in den Seitenstraßen des Wins- oder Bötzowviertels. Nur ein Katzensprung entfernt befinden sich die Tram-Stationen M4 Richtung Alexanderplatz und Hackescher Markt sowie auch die M10 Richtung Hauptbahnhof bis Turmstraße oder Warschauer Straße. In den Volkspark Friedrichshain spazieren Sie in 5 Minuten.
Verfügbarkeit: frei ab sofort bzw. nach Vereinbarung – zur Selbstnutzung!
| Hausgeld* z. Zt. monatlich: | 505,00 EUR |
| Kaufpreis: | 669.000,00 EUR |
*(inklusive u.a. Heizung, Warmwasser und Instandhaltungsrücklage)
Energieeffizienzklasse: C
Energieträger: Erdgas
Baujahr Gebäude: 1903
Baujahr Wärmeerzeuger: 2001
Gültigkeit: 09.10.2018 – 08.10..2028

