Objekt-Nr. 07250906
Kantstraße 54, 10627 Berlin (Charlottenburg)
Keine Besichtigung mehr möglich! | Mietvertrag in Abwicklung!
Hier finden Sie Ruhe zum arbeiten
Start-up und Existenzgründer sind herzlich willkommen!
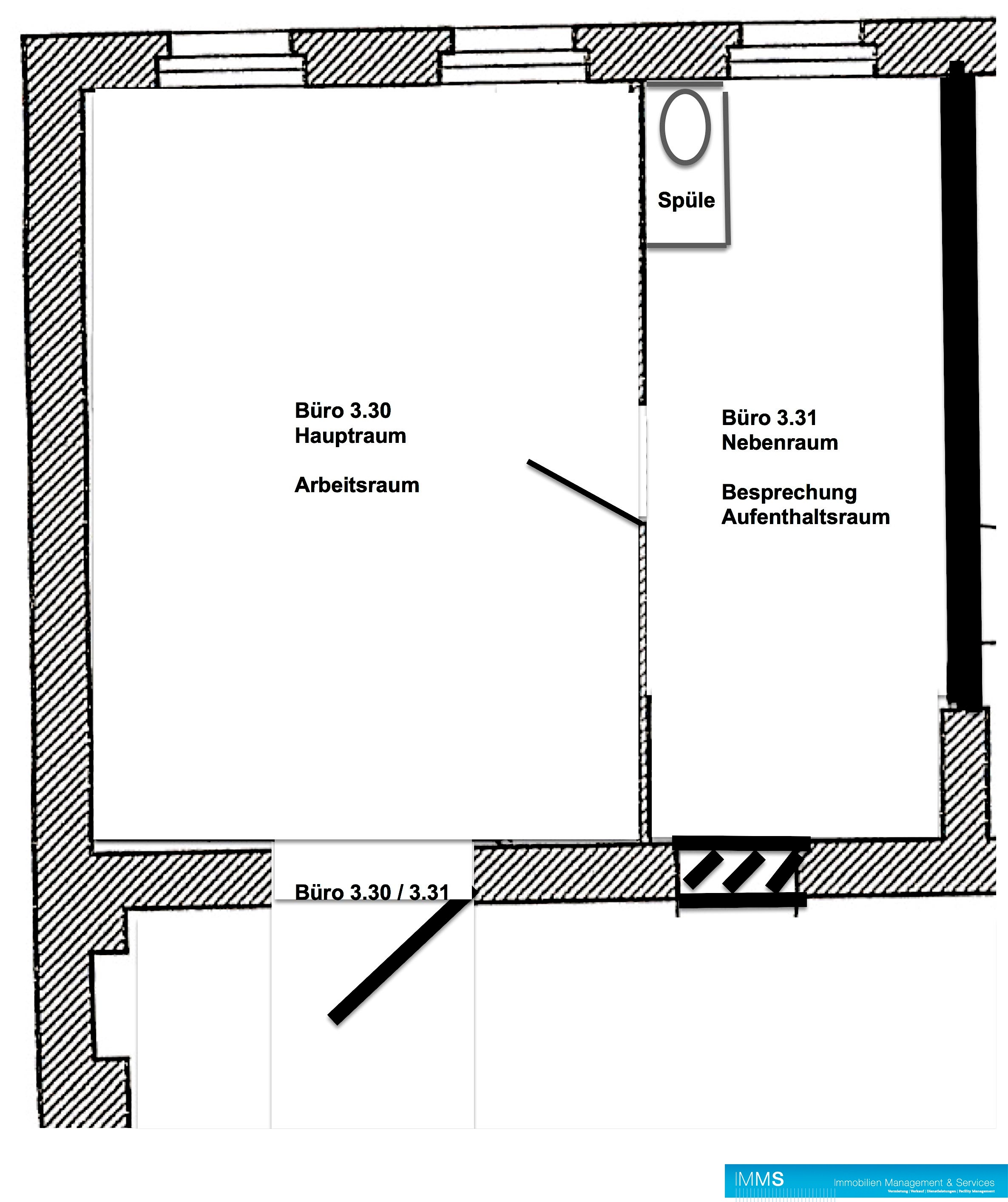
2-Zimmer-Gewerbe-/Büro-Räume für Ihren künftigen Gewerbe-Standort – ca. 40 m², 3.OG mit Aufzug in einem Geschäftsgebäude. erbaut Im Jahr 1912. In diesem Gebäude befindet sich das historische KANT KINO und ist heute noch eines der ältesten, aktiven Filmtheater der Stadt Berlin. Hier befinden sich die renovierten Gewerberäume in der 3. Etage. Sie arbeiten hier in ruhiger Umgebung und freuen sich auf hohe Decken, altbautypische Holz-Kastenfenster sowie einen abgezogenen Holzdielenboden, der in der Sonne herrlich honigfarben glänzt. Die Gewerbeeinheit bietet zwei nebeneinander liegende Arbeitsräume. Diese Einheit liegt zur ruhigen Nordseite und ist im Sommer stets angenehm temperiert. Es gibt ein Zentralheizung, die derzeit auf Fernwärme umgestellt wird sowie fließend Wasser im kleineren Nebenzimmer. Die WC-Toiletten, für Damen und Herren getrennt, befinden sich am Flur, separat auf der Etage. Die Reinigung und Wartung der WC-Anlagen ist organisiert und in den Betriebskosten enthalten. Sie finden hier einen hellen und ruhigen Arbeitsraum mit Charme und Charakter, eingebettet in einem sehr schönen, historischen Geschäftsgebäude. Sehen Sie selbst …
Lage: Kantstraße. Die Lage spricht für sich selbst. Ihr neuer Standort ist hier um die Ecke der Fußgängerzone „Wilmersdorfer Straße“ mit vielen Einzelhandelsfachgeschäften gelegen. Neben der hervorragenden Verkehrsanbindung mit Bussen der Linien 309, M49, X34 befindet sich auch die U-Bahn-Station „U-Wilmersdorfer Str./ U7“ nur eine Gehminute entfernt.
Verfügbarkeit: frei ab sofort!
| Netto-Kaltmiete: | 660,00 EUR* |
| Betriebsnebenkosten (kalt): | 100,00 EUR* |
| Heizung: | 80,00 EUR* |
| Kaution: | 3 x Netto-Kaltmieten |
*Die Preise verstehen sich netto zuzüglich der gesetzlichen Mehrwertsteuer
Mietvertrag:
Indexmietvertrag mit 1 Jahr Laufzeit (Verlängerung um jeweils 1 Jahr, Kündigungsfirst 3 Monate zum Ende der Vertragslaufzeit)
___________________________________________________________
Energieträger: Heizöl
Baujahr Gebäude: 1895
Baujahr Anlagentechnik: k.A:

